ÀÝÄÅ»ÔÄáÌî3¤ÎÄÂÂß
ÀÝÄÅ»ÔÄáÌî3¤ÎÂߤ·ÁÒ¸Ëʪ·ï ¾ÜºÙ
¤³¤Îʪ·ï¾ðÊó¤Ï¡Ú¡Û¤ËºîÀ®¤µ¤ì¤¿¤â¤Î¤Ç¤¹¡£













ÉßÃÏÌÌÀÑ¡¡1,209.78Ö¡Ê365ÄÚ¡Ë
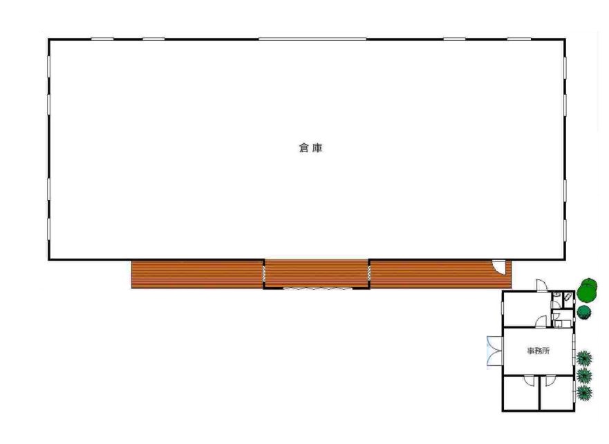
ÁÒ¸ËÅï¡¡627.74Ö¡Ê189.89ÄÚ¡Ë
ÀÝÄÅ»ÔÄáÌî3ÃúÌÜ¡¢Ê¿²°·ú¤ÆÂç·¿ÁҸˤÎÊ罸¾ðÊó¤Ç¤¹¡£
ÁÒ¸ËÆâÅ·°æ¹â¤µ¡¡Ìó6.95£í
ÉßÃÏÆâ·úʪÁ°¤ÏÊ£¿ôÂæ¤ÎÃó¼Ö¥¹¥Ú¡¼¥¹¤âͤê¤Þ¤¹¡ª
ÊÌÅÓ»ö̳½êÅï¡¡48.6Ö¡ÊÌó15ÄÚ¡ËÉÕ¤¡£
Äê´ü¼Ú²È·ÀÌó4ǯ¤Ë¤Ê¤ê¤Þ¤¹¡£
·ÀÌó¾ò·ï¡¦ÍøÍÑÍÑÅÓÅùÁêÃ̤˾è¤ê¤Þ¤¹¤Î¤Ç¤Þ¤º¤Ï¤ªÌä¹ç¤»²¼¤µ¤¤¡ª
| À®Ìó¾õ¶· | |
|---|---|
| Ä¡¡ÎÁ | - |
| ´ÉÍýÈñ¡§-¶¦±×Èñ¡§- | |
| Éß¶â¡§-¡ÃÎé¶â¡§- | |
| Êݾڶ⡧-¡Ã²òÌó°ú¡§- | |
| ÄÚ¡¡¿ô | 204.89ÄÚ¡¡·úʪÌÌÀÑ¡§676.34m2 |
| È÷¹Í | ¡Ý |
|---|
| ½êºßÃÏ | ÀÝÄÅ»Ô ÄáÌî3 google¥Þ¥Ã¥×¤Ç¤ß¤ë |
|---|---|
| ¸òÄÌ | Âçºå¥â¥Î¥ì¡¼¥ëËÜÀþ ¡ÖÀÝÄűءױØÅÌÊâ 8ʬ |
| ʪ·ï¹½Â¤ | Å´¹ü | ʪ·ï³¬ÁØ | 1³¬·ú |
|---|---|---|---|
| ʪ·ï¼ïÊÌ | ÁÒ¸Ë | ´°À®Ç¯·î | 1983ǯ3·î |
| ÍÑÅÓÃϰè | ½à¹©¶ÈÃϰè | ||
| ʪ·ïÀßÈ÷ | ÅÅÆ°¥·¥ã¥Ã¥¿¡¼¥È¥¤¥ìÃó¼Ö¾ìÅŵ¤ÅÔ»Ô¥¬¥¹¾å¿åÆ»¸ø¶¦²¼¿åưÎÏÅŵ¤ ¡Ý | ||
| ʪ·ïÈÖ¹æ | US1-05531 |
|---|---|
| ¥µ¥¤¥È̾ | Âçºå¤ÎÂßÁҸˡ¦Âß¹©¾ì¡¦ÇäÇã |
072-737-6699
½êºßÃÏ¡§ÂçºåÉÜ̧ÌÌ»Ô̧ÌÌ1-9-21
¥¢¥¯¥»¥¹¡§ºåµÞ̧Ì̱ؤè¤êÅì¤ØÅÌÊâ2ʬ¡ª±ØÁ°¥í¡¼¥¿¥ê¡¼¤è¤ê¥¹¥°ÌܤÎÁ°¡ª
06-6657-7090
½êºßÃÏ¡§ÂçºåÉÜÂçºå»Ô½»Ç·¹¾¶èÆî²Ã²ì²°2-8-25¥»¥¸¥å¡¼¥ë24 1³¬
¥¢¥¯¥»¥¹¡§Âçºå¥á¥È¥í½»Ç·¹¾¸ø±à±Ø4Èֽиý¿·¤Ê¤Ë¤ï¶Ú¤òÅϤäƥ¹¥°
»÷¤¿Êª·ï¤òõ¤·¤¿¤¤¡¢ºÇ¿·¤Îʪ·ï¾ðÊó¤òÃΤꤿ¤¤¡¢´õ˾¤Îʪ·ï¾ò·ï¤Ç¸«¤Ä¤±¤ÆÍߤ·¤¤¡¢¤Ê¤É¤ªµ¤·Ú¤Ë¤ªÌ䤤¹ç¤ï¤»²¼¤µ¤¤¡£