̧ÌÌ»ÔÁ¥¾ìÀ¾2¤ÎÄÂÂß
̧ÌÌ»ÔÁ¥¾ìÀ¾2¤ÎÂߤ·ÁÒ¸Ëʪ·ï ¾ÜºÙ
¤³¤Îʪ·ï¾ðÊó¤Ï¡Ú¡Û¤ËºîÀ®¤µ¤ì¤¿¤â¤Î¤Ç¤¹¡£













ÂçºåÉÜ̧ÌÌ»ÔÁ¥¾ìÀ¾2ÃúÌÜ
»ñºàÃÖ¾ìÅù¤Ë¤âºÇŬ¤Ê¡Úû´üÂߤ·ÀìÍÑ¡ÛÁҸˤΤ´¾Ò²ð¤Ç¤¹¡ª
¿·¸æÆ²¶Ú¤ä171¹æÀþ¤â¶á¤¯¸òÄ̤ÎÊØ¤¬Îɤ¤Î©ÃϤǤ¹¡£
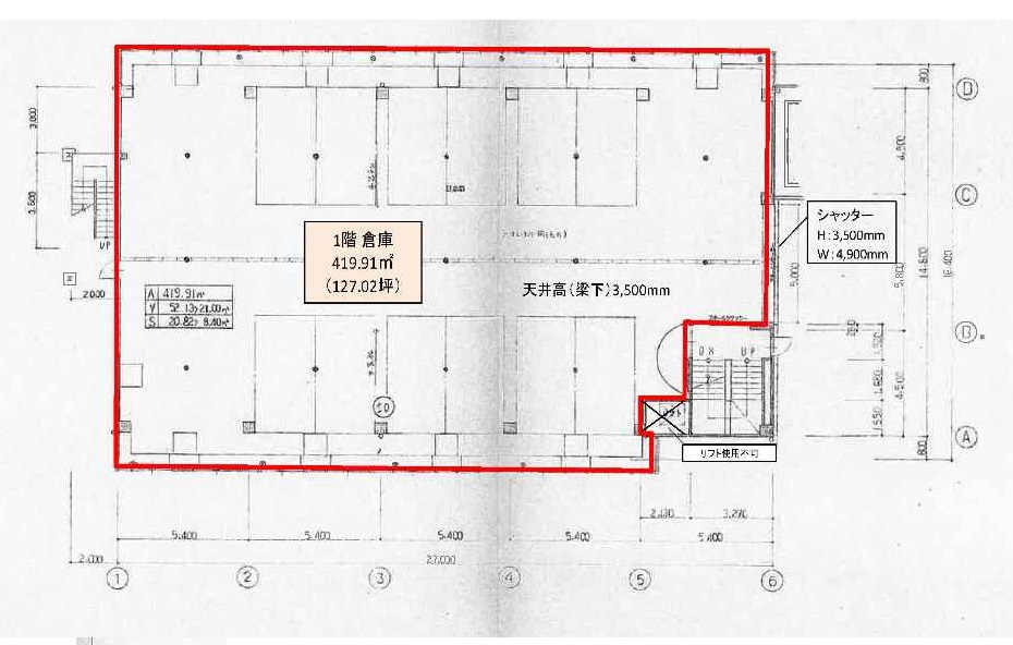
1³¬ÁҸˡ¡Ìó419.91Ö¡Ê127.02ÄÚ¡Ë
Æþ¸ý¤ÏÅÅÆ°¥·¥ã¥Ã¥¿¡¼¡Ê¹â¤µ3500×Éý4900¡Ë¡¢
Æþ¸ýÁ°¤ËÃó¼Ö¥¹¥Ú¡¼¥¹¤âͤê¤Þ¤¹¡£
̧Ì̻ԤǤϴõ¾¯¤ÊÂßÁÒ¸Ëʪ·ï¡¢
û´üÂߤÎÊ罸¤Ç¤¹¤Î¤Ç»ñºàÃÖ¤¾ìÅù¤Ç¤ªÃµ¤·¤ÎÊý¤Ë¥ª¥¹¥¹¥á¤Ç¤¹¡£
»ÈÍÑ´ü´Ö¤Ï¤´ÁêÃ̲¼¤µ¤¤¡£
| À®Ìó¾õ¶· | |
|---|---|
| Ä¡¡ÎÁ | - |
| ´ÉÍýÈñ¡§-¶¦±×Èñ¡§- | |
| Éß¶â¡§-¡ÃÎé¶â¡§- | |
| Êݾڶ⡧-¡Ã²òÌó°ú¡§- | |
| ÄÚ¡¡¿ô | 127.02ÄÚ¡¡·úʪÌÌÀÑ¡§419.91m2 |
| È÷¹Í | ¡Ý |
|---|
| ½êºßÃÏ | ̧ÌÌ»Ô Á¥¾ìÀ¾2 google¥Þ¥Ã¥×¤Ç¤ß¤ë |
|---|---|
| ¸òÄÌ | Âçºå¥â¥Î¥ì¡¼¥ëËÜÀþ ¡ÖÀéÎ¤Ãæ±û±Ø¡×±ØÅÌÊâ 25ʬ |
| ʪ·ï¹½Â¤ | Å´¹üÅ´¶ÚŽºŽÝޏިްŽÄ | ʪ·ï³¬ÁØ | 2³¬·ú |
|---|---|---|---|
| ʪ·ï¼ïÊÌ | ÁÒ¸Ë | ´°À®Ç¯·î | 1991ǯ |
| ÍÑÅÓÃϰè | Âè2¼ïÃæ¹âÁؽ»µïÀìÍÑÃϰè | ||
| ʪ·ïÀßÈ÷ | ¥·¥ã¥¿¡¼ÅÅÆ°¥·¥ã¥Ã¥¿¡¼Ãó¼Ö¾ìÅŵ¤ ¡Ý | ||
| ʪ·ïÈÖ¹æ | US1-05526 |
|---|---|
| ¥µ¥¤¥È̾ | Âçºå¤ÎÂßÁҸˡ¦Âß¹©¾ì¡¦ÇäÇã |
072-737-6699
½êºßÃÏ¡§ÂçºåÉÜ̧ÌÌ»Ô̧ÌÌ1-9-21
¥¢¥¯¥»¥¹¡§ºåµÞ̧Ì̱ؤè¤êÅì¤ØÅÌÊâ2ʬ¡ª±ØÁ°¥í¡¼¥¿¥ê¡¼¤è¤ê¥¹¥°ÌܤÎÁ°¡ª
06-6657-7090
½êºßÃÏ¡§ÂçºåÉÜÂçºå»Ô½»Ç·¹¾¶èÆî²Ã²ì²°2-8-25¥»¥¸¥å¡¼¥ë24 1³¬
¥¢¥¯¥»¥¹¡§Âçºå¥á¥È¥í½»Ç·¹¾¸ø±à±Ø4Èֽиý¿·¤Ê¤Ë¤ï¶Ú¤òÅϤäƥ¹¥°
»÷¤¿Êª·ï¤òõ¤·¤¿¤¤¡¢ºÇ¿·¤Îʪ·ï¾ðÊó¤òÃΤꤿ¤¤¡¢´õ˾¤Îʪ·ï¾ò·ï¤Ç¸«¤Ä¤±¤ÆÍߤ·¤¤¡¢¤Ê¤É¤ªµ¤·Ú¤Ë¤ªÌ䤤¹ç¤ï¤»²¼¤µ¤¤¡£