Âçºå»ÔÃæ±û¶è´¤²°Ä®3¤ÎÄÂÂß
Âçºå»ÔÃæ±û¶è´¤²°Ä®3¤ÎÂߤ·ÁÒ¸Ëʪ·ï ¾ÜºÙ
¤³¤Îʪ·ï¾ðÊó¤Ï¡Ú¡Û¤ËºîÀ®¤µ¤ì¤¿¤â¤Î¤Ç¤¹¡£













Âçºå»ÔÃæ±û¶è´¤Ä®3ÃúÌÜ
»ÔÆâÃæ¿´¥¨¥ê¥¢¡Á100ÄÚ¥ª¡¼¥Ð¡¼¤ÎÂç·¿ÁҸ˻ö̳½ê¤¬¶õ¤¤Þ¤·¤¿¡£
ºå¿À¹â®´Ä¾õÀþ¡ÚÆ»ÆÜËÙ¡Û½ÐÆþ¸ý¤¹¤°¤ÎΩÃÏ¡ª
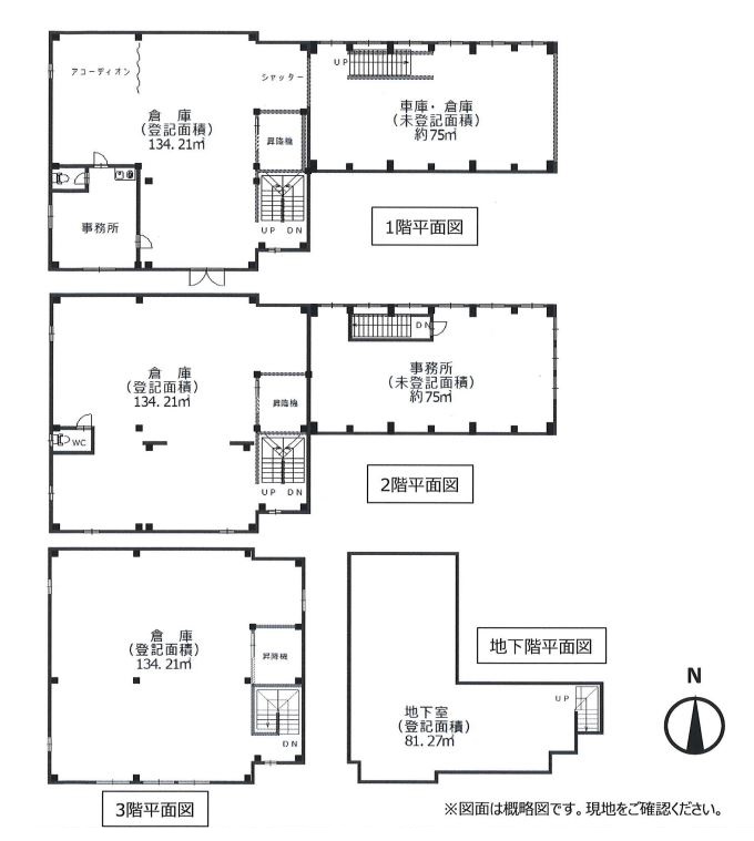
3³¬·ú¤ÆÃϲ¼1³¬ÉÕ¤
±ä¤ÙÌÌÀÑ¡¢Ìó633.9Ö¡ÊÌó192ÄÚ¡Ë¡ª
ÁÒ¸ËÉôʬ¤Ë¤Ï²ÙʪÈÂÁ÷ÍÑ¥ê¥Õ¥ÈÉÕ¤¡¢1³¬Éôʬ¤Ë¤Ï¼Ö¸Ë¤È¤·¤Æ
»ÈÍѤǤ¤ë¥¹¥Ú¡¼¥¹¤âͤê¤Þ¤¹¡£
ÁҸˡ¦»ö̳½ê¡¦¼Ö¸Ë¡¢Â¿ÍÑÅӤǻÈÍѤǤ¤ë´õ¾¯Êª·ï¤Ç¤¹¡ª
| À®Ìó¾õ¶· | |
|---|---|
| Ä¡¡ÎÁ | - |
| ´ÉÍýÈñ¡§-¶¦±×Èñ¡§- | |
| Éß¶â¡§-¡ÃÎé¶â¡§- | |
| Êݾڶ⡧-¡Ã²òÌó°ú¡§- | |
| ÄÚ¡¡¿ô | 192ÄÚ¡¡·úʪÌÌÀÑ¡§633.9m2 |
| È÷¹Í | ¡Ý |
|---|
| ½êºßÃÏ | Âçºå»ÔÃæ±û¶è ´¤²°Ä®3 google¥Þ¥Ã¥×¤Ç¤ß¤ë |
|---|---|
| ¸òÄÌ | Âçºå¥á¥È¥íÀéÆüÁ°Àþ ¡ÖÆüËܶ¶±Ø¡×±ØÅÌÊâ 6ʬ |
| ʪ·ï¹½Â¤ | Å´¹üÅ´¶ÚŽºŽÝޏިްŽÄ | ʪ·ï³¬ÁØ | 3³¬·ú |
|---|---|---|---|
| ʪ·ï¼ïÊÌ | ÁÒ¸Ë | ´°À®Ç¯·î | 1953ǯ6·î |
| ÍÑÅÓÃϰè | ¡Ý | ||
| ʪ·ïÀßÈ÷ | ¥·¥ã¥¿¡¼¥È¥¤¥ìÃó¼Ö¾ì¥ê¥Õ¥ÈÅŵ¤¾å¿åÆ»¸ø¶¦²¼¿å ¡Ý | ||
| ʪ·ïÈÖ¹æ | US1-05489 |
|---|---|
| ¥µ¥¤¥È̾ | Âçºå¤ÎÂßÁҸˡ¦Âß¹©¾ì¡¦ÇäÇã |
072-737-6699
½êºßÃÏ¡§ÂçºåÉÜ̧ÌÌ»Ô̧ÌÌ1-9-21
¥¢¥¯¥»¥¹¡§ºåµÞ̧Ì̱ؤè¤êÅì¤ØÅÌÊâ2ʬ¡ª±ØÁ°¥í¡¼¥¿¥ê¡¼¤è¤ê¥¹¥°ÌܤÎÁ°¡ª
06-6657-7090
½êºßÃÏ¡§ÂçºåÉÜÂçºå»Ô½»Ç·¹¾¶èÆî²Ã²ì²°2-8-25¥»¥¸¥å¡¼¥ë24 1³¬
¥¢¥¯¥»¥¹¡§Âçºå¥á¥È¥í½»Ç·¹¾¸ø±à±Ø4Èֽиý¿·¤Ê¤Ë¤ï¶Ú¤òÅϤäƥ¹¥°
»÷¤¿Êª·ï¤òõ¤·¤¿¤¤¡¢ºÇ¿·¤Îʪ·ï¾ðÊó¤òÃΤꤿ¤¤¡¢´õ˾¤Îʪ·ï¾ò·ï¤Ç¸«¤Ä¤±¤ÆÍߤ·¤¤¡¢¤Ê¤É¤ªµ¤·Ú¤Ë¤ªÌ䤤¹ç¤ï¤»²¼¤µ¤¤¡£