¿áÅÄ»ÔÆî¶âÅÄ2¤ÎÄÂÂß
¿áÅÄ»ÔÆî¶âÅÄ2¤ÎÂߤ·ÁÒ¸Ëʪ·ï ¾ÜºÙ
¤³¤Îʪ·ï¾ðÊó¤Ï¡Ú¡Û¤ËºîÀ®¤µ¤ì¤¿¤â¤Î¤Ç¤¹¡£













ËÌÀÝ¥¨¥ê¥¢
ÂçºåÉÜ¿áÅÄ»ÔÆî¶âÅÄ2ÃúÌÜ
¹¾ºä±Ø¤¬ºÇ´ó¤ê¤Î2³¬·ú¤ÎÂßÁҸ˻ö̳½ê¤Ç¶õ¤Í½Ä꤬½Ð¤Þ¤·¤¿¡ª
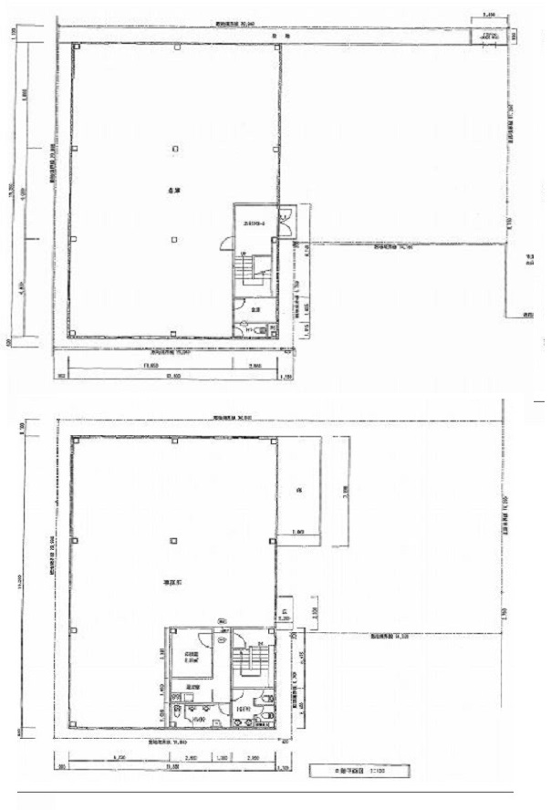
Å´¹ü¤2³¬·ú¤Æ¡¡±ä¤Ù529.92Ö¡Ê160.3ÄÚ¡Ë
³Æ³¬¡¡Ìó80ÄÚ¡£
1³¬¤ÏÁҸ˻ÅÍÍ
2³¬¤Ï»ö̳½ê»ÅÍÍ
³Æ³¬¤Ë¥È¥¤¥ìÀßÃÖ¡¢»ö̳½êÉôʬ¤ÏOA¥Õ¥í¥¢¤Ë¤Ê¤Ã¤Æ¤¤¤Þ¤¹¡£
Á°Ì̶õÃϤËÉáÄ̼ÖÌó6¡Á7ÂæÄøÃó¼Ö²Äǽ¤Ç¤¹¡ª
Á°Ì̶õÃϤ餵¡¢¥Õ¥í¥¢¤Î¥µ¥¤¥º´¶¡¢Éý¹¤¤¶È¼ï¡¢Â¿¤¯¤Î´ë¶ÈÍͤË
¸¡Æ¤¤·¤Æ¤¤¤¿¤À¤¤ä¤¹¤¤Êª·ï¤Ç¤¹¡ª
¶õ¤Í½Äê¤Ë¤Ê¤ê¤Þ¤¹¡¢2021ǯ8·î°Ê¹ß¤ÎÆþµïÁêÃ̤ˤʤê¤Þ¤¹¡£
ÆâÍ÷¤äʪ·ï¾ÜºÙ¤ªµ¤·Ú¤Ë¤ªÌä¹ç¤»¤¯¤À¤µ¤¤¡ª
| À®Ìó¾õ¶· | |
|---|---|
| Ä¡¡ÎÁ | - |
| ´ÉÍýÈñ¡§-¶¦±×Èñ¡§- | |
| Éß¶â¡§-¡ÃÎé¶â¡§- | |
| Êݾڶ⡧-¡Ã²òÌó°ú¡§- | |
| ÄÚ¡¡¿ô | 160.3ÄÚ¡¡·úʪÌÌÀÑ¡§529.92m2 |
| È÷¹Í | ¡Ý |
|---|
| ½êºßÃÏ | ¿áÅÄ»Ô Æî¶âÅÄ2 google¥Þ¥Ã¥×¤Ç¤ß¤ë |
|---|---|
| ¸òÄÌ | Âçºå¥á¥È¥í¸æÆ²¶ÚÀþ ¡Ö¹¾ºä±Ø¡×±ØÅÌÊâ 12ʬ |
| ʪ·ï¹½Â¤ | Å´¹ü | ʪ·ï³¬ÁØ | 2³¬·ú |
|---|---|---|---|
| ʪ·ï¼ïÊÌ | ÁÒ¸Ë | ´°À®Ç¯·î | 2006ǯ6·î |
| ÍÑÅÓÃϰè | Âè1¼ï½»µïÃϰè | ||
| ʪ·ïÀßÈ÷ | ¥·¥ã¥¿¡¼¥¨¥¢¥³¥ó¥È¥¤¥ì¾ÈÌÀÃó¼Ö¾ìÅŵ¤¾å¿åÆ»¸ø¶¦²¼¿å ¡Ý | ||
| ʪ·ïÈÖ¹æ | US1-05478 |
|---|---|
| ¥µ¥¤¥È̾ | Âçºå¤ÎÂßÁҸˡ¦Âß¹©¾ì¡¦ÇäÇã |
072-737-6699
½êºßÃÏ¡§ÂçºåÉÜ̧ÌÌ»Ô̧ÌÌ1-9-21
¥¢¥¯¥»¥¹¡§ºåµÞ̧Ì̱ؤè¤êÅì¤ØÅÌÊâ2ʬ¡ª±ØÁ°¥í¡¼¥¿¥ê¡¼¤è¤ê¥¹¥°ÌܤÎÁ°¡ª
06-6657-7090
½êºßÃÏ¡§ÂçºåÉÜÂçºå»Ô½»Ç·¹¾¶èÆî²Ã²ì²°2-8-25¥»¥¸¥å¡¼¥ë24 1³¬
¥¢¥¯¥»¥¹¡§Âçºå¥á¥È¥í½»Ç·¹¾¸ø±à±Ø4Èֽиý¿·¤Ê¤Ë¤ï¶Ú¤òÅϤäƥ¹¥°
»÷¤¿Êª·ï¤òõ¤·¤¿¤¤¡¢ºÇ¿·¤Îʪ·ï¾ðÊó¤òÃΤꤿ¤¤¡¢´õ˾¤Îʪ·ï¾ò·ï¤Ç¸«¤Ä¤±¤ÆÍߤ·¤¤¡¢¤Ê¤É¤ªµ¤·Ú¤Ë¤ªÌ䤤¹ç¤ï¤»²¼¤µ¤¤¡£