Âçºå»ÔÀ¾À®¶èÆîÄżé2¤ÎÂߤ·ÁÒ¸Ëʪ·ï ¾ÜºÙ

ºå¿À¹â®15¹æºæÀþ¡Ú¶Ì½ÐIC¡Û¶á¤¯¡¢Âç·¿ÁҸ˺î¶È¾ì¡£

Âçºå»ÔÀ¾À®¶èÆîÄżé2¤ÎÄÂÂß

¤³¤Îʪ·ï¾ðÊó¤Ï¡Ú¡Û¤ËºîÀ®¤µ¤ì¤¿¤â¤Î¤Ç¤¹¡£

ʪ·ï¾ðÊó

ºå¿À¹â®15¹æºæÀþ¡Ú¶Ì½ÐIC¡Û¶á¤¯¡¢
Âçºå»ÔÀ¾À®¶èÆîÄżé2ÃúÌÜ

Âç·¿¤ÎÁҸ˺î¶È¾ì¤ËÂàµîͽÄ꤬½Ð¤Þ¤·¤¿¡£

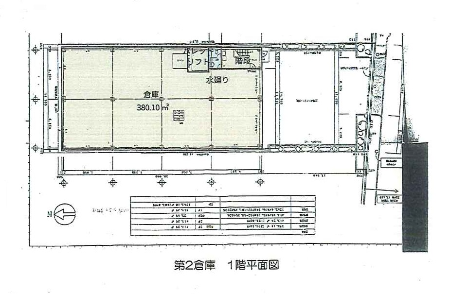
4³¬·ú¤Æ¡¡±ä¤Ù1,262.4­Ö¡ÊÌó382.5ÄÚ¡Ë
1³¬-413.25­Ö¡ÊÌó125.2ÄÚ¡Ë
¡¡¡¡Í­¸úÅ·°æ¹â¡¢Ìó5.5£í
2³¬-22.65­Ö¡ÊÌó6.8ÄÚ¡Ë
3³¬-413.25­Ö¡ÊÌó125.2ÄÚ¡Ë
¡¡¡¡Í­¸úÅ·°æ¹â¡¢Ìó4.5£í
4³¬-413.25­Ö¡ÊÌó125.2ÄÚ¡Ë
¡¡¡¡Í­¸úÅ·°æ¹â¡¢4.5¡Á6£í

1³¬¥·¥ã¥Ã¥¿¡¼2ÌÌÍ­¤ê
¡ÊÉý5.9£í×¹â4.0£í¡¢Éý3.4£í×¹â4m¡Ë
ÉßÃÏÆâ·úʪÁ°¤ËÃó¼Ö¥¹¥Ú¡¼¥¹¤âÍ­¤ê¤Þ¤¹¡£

¸½ºß»ÈÍÑÃæ¡¢2021ǯ9·î¤Î°úÅϤ·Í½Äê¤Ë¤Ê¤ê¤Þ¤¹¤Î¤Ç
¤´Ãí°Õ¤¯¤À¤µ¤¤¡£

À®Ìó¾õ¶· Í׳Îǧ
Ä¡¡ÎÁ -
´ÉÍýÈñ¡§-¶¦±×Èñ¡§-
Éß¶â¡§-¡ÃÎé¶â¡§-
Êݾڶ⡧-¡Ã²òÌó°ú¡§-
ÄÚ¡¡¿ô 382.54ÄÚ¡¡·úʪÌÌÀÑ¡§1262.4m2
È÷¹Í ¡Ý

ʪ·ï´ðËܾðÊó

½êºßÃÏÂçºå»ÔÀ¾À®¶è ÆîÄżé2
google¥Þ¥Ã¥×¤Ç¤ß¤ë
¸òÄÌÂçºå¥á¥È¥í»Í¤Ä¶¶Àþ
¡ÖË̲ò첰±Ø¡×±ØÅÌÊâ 17ʬ
ʪ·ï¹½Â¤Å´¹ü ʪ·ï³¬ÁØ4³¬·ú
ʪ·ï¼ïÊÌÁÒ¸Ë ´°À®Ç¯·î1993ǯ8·î
ÍÑÅÓÃϰ蹩¶ÈÃϰè
ʪ·ïÀßÈ÷¥·¥ã¥¿¡¼¥È¥¤¥ìÃó¼Ö¾ì¥ê¥Õ¥ÈÅŵ¤¾å¿åÆ»¸ø¶¦²¼¿å ¡Ý
ʪ·ïÈÖ¹æUS1-05468
¥µ¥¤¥È̾Âçºå¤ÎÂßÁҸˡ¦Âß¹©¾ì¡¦ÇäÇã

ôÅöŹÊÞ

ŹÊÞ³°´Ñ

BRUNOÉÔÆ°»º³ô¼°²ñ¼Ò ¥¨¥¤¥Ö¥ë¥Í¥Ã¥È¥ï¡¼¥¯Ì§ÌÌŹ

072-737-6699

½êºßÃÏ¡§ÂçºåÉÜ̧ÌÌ»Ô̧ÌÌ1-9-21
¥¢¥¯¥»¥¹¡§ºåµÞ̧Ì̱ؤè¤êÅì¤ØÅÌÊâ2ʬ¡ª±ØÁ°¥í¡¼¥¿¥ê¡¼¤è¤ê¥¹¥°ÌܤÎÁ°¡ª

ÃϿޠÍèŹͽÌ󤹤ë

ŹÊÞ³°´Ñ

BRUNOÉÔÆ°»º³ô¼°²ñ¼Ò ¥¨¥¤¥Ö¥ë¥Í¥Ã¥È¥ï¡¼¥¯½»Ç·¹¾¸ø±àŹ

06-6657-7090

½êºßÃÏ¡§ÂçºåÉÜÂçºå»Ô½»Ç·¹¾¶èÆî²Ã²ì²°2-8-25¥»¥¸¥å¡¼¥ë24 1³¬
¥¢¥¯¥»¥¹¡§Âçºå¥á¥È¥í½»Ç·¹¾¸ø±à±Ø4Èֽиý¿·¤Ê¤Ë¤ï¶Ú¤òÅϤäƥ¹¥°

ÃϿޠÍèŹͽÌ󤹤ë

ŹÊÞ³°´Ñ

BRUNOÉÔÆ°»º³ô¼°²ñ¼Ò ¥¨¥¤¥Ö¥ë¥Í¥Ã¥È¥ï¡¼¥¯Èî¸å¶¶¤¦¤Ä¤Ü¸ø±àÁ°Å¹

06-6459-4555

½êºßÃÏ¡§Âçºå»ÔÀ¾¶èµþÄ®ËÙ1-10-21
¥¢¥¯¥»¥¹¡§Ãϲ¼Å´»Í¥Ä¶¶Àþ Èî¸å¶¶±Ø7Èֽиý¤è¤êÆîÀ¾¤ØÅÌÊâ3ʬ

ÃϿޠÍèŹͽÌ󤹤ë

»÷¤¿Êª·ï¤òõ¤·¤¿¤¤¡¢ºÇ¿·¤Îʪ·ï¾ðÊó¤òÃΤꤿ¤¤¡¢´õ˾¤Îʪ·ï¾ò·ï¤Ç¸«¤Ä¤±¤ÆÍߤ·¤¤¡¢¤Ê¤É¤ªµ¤·Ú¤Ë¤ªÌ䤤¹ç¤ï¤»²¼¤µ¤¤¡£

´õ˾¾ò·ï¥ê¥¯¥¨¥¹¥È