大阪市北区中津7の賃貸
大阪市北区中津7の貸し倉庫物件 詳細
この物件情報は【】に作成されたものです。













市内中心エリア、大阪市北区中津7丁目。
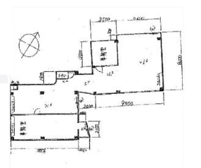
6階建ての1階部分の倉庫が募集中!
事務所スペース付きで、広さは約48.3坪です。
室内の両サイドが道路に面して、出入可能。
天井高は3.3。
駐車スペース有で、普通車なら2台駐車可能です。
諸条件相談可能!
気になる方は是非一度ご覧下さいませ!
| 備考 | − |
|---|
| 所在地 | 大阪市北区 中津7 googleマップでみる |
|---|---|
| 交通 | 阪急神戸線 「中津駅」駅徒歩 7分 |
| 物件構造 | 鉄骨 | 物件階層 | 6階建 |
|---|---|---|---|
| 物件種別 | 倉庫 | 完成年月 | 1985年11月 |
| 用途地域 | 準工業地域 | ||
| 物件設備 | シャター電動シャッターエアコントイレ給湯照明駐車場電気都市ガス上水道公共下水動力電気 − | ||
| 物件番号 | US1-05439 |
|---|---|
| サイト名 | 大阪の貸倉庫・貸工場・売買 |
06-6657-7090
所在地:大阪府大阪市住之江区南加賀屋2-8-25セジュール24 1階
アクセス:大阪メトロ住之江公園駅4番出口新なにわ筋を渡ってスグ
似た物件を探したい、最新の物件情報を知りたい、希望の物件条件で見つけて欲しい、などお気軽にお問い合わせ下さい。