ÅìÂçºå»Ô¹â°æÅÄÃæ3¤ÎÄÂÂß
ÅìÂçºå»Ô¹â°æÅÄÃæ3¤ÎÂߤ·ÁÒ¸Ëʪ·ï ¾ÜºÙ
¤³¤Îʪ·ï¾ðÊó¤Ï¡Ú¡Û¤ËºîÀ®¤µ¤ì¤¿¤â¤Î¤Ç¤¹¡£













ºå¿À¹â®13¹æÅìÂçºåÀþ¤¹¤°
Âçºå¥á¥È¥íÃæ±ûÀþ¡Ú¹â°æÅıءÛ
JR¤ª¤ª¤µ¤«ÅìÀþ¡Ú¹â°æÅÄÃæ±û±Ø¡ÛÅÌÊâÌó9ʬ¡£
¼Ö¡¦Åż֤ǤΥ¢¥¯¥»¥¹¤¬Îɤ¤¡¢
ÅìÂçºå»Ô¹â°æÅÄÃæ3ÃúÌÜ¡¢2021ǯ7·î½×¹©¤Î¿·ÃÛÁҸ˻ö̳½ê¤ËÊ罸¤¬½Ð¤Þ¤·¤¿¡ª
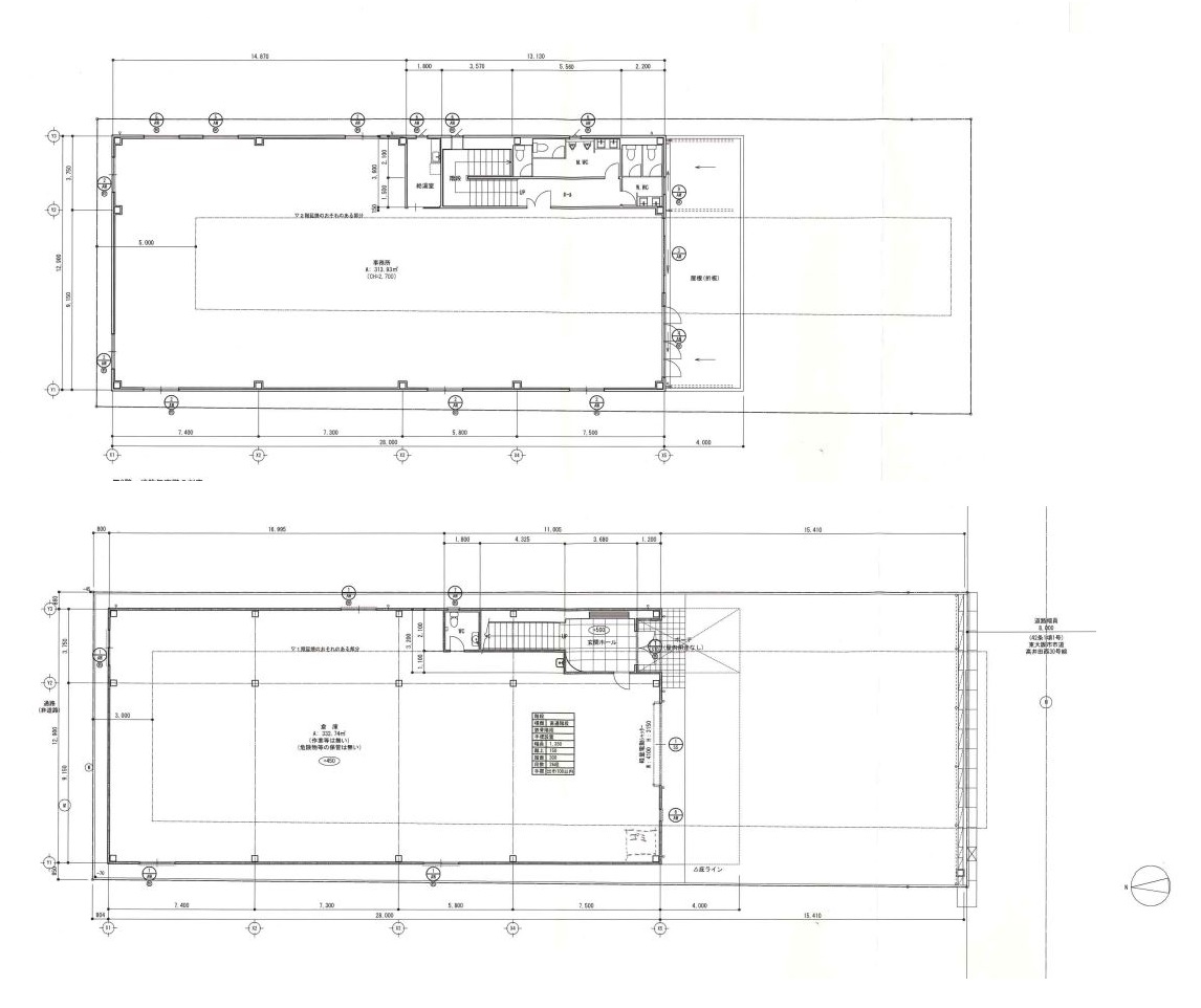
ÉßÃÏÌÌÀÑ¡¡656.43Ö¡Ê198.57ÄÚ¡Ë
·úʪÌÌÀÑ¡¡±ä¤Ù722.40Ö¡Ê218.52ÄÚ¡Ë
1³¬¡¦ÁҸ˥¹¥Ú¡¼¥¹-361.20Ö¡Ê109.26ÄÚ¡Ë
2³¬¡¦»ö̳½ê¥¹¥Ú¡¼¥¹-361.20Ö¡Ê109.26ÄÚ¡Ë
ÉßÃÏÆâ·úʪÁ°Ì̤ËÃó¼Ö¥¹¥Ú¡¼¥¹Í¤ê¡£
2³¬»ö̳½ê¥¹¥Ú¡¼¥¹¤Ë¤Ï¸ÄÊ̶õÄ´ÀßÃÖ¡£
2021ǯ7·î½×¹©Í½Äê¤Î¿·ÃÛÁҸ˻ö̳½ê¡ª
¤´´õ˾¤ÎÊý¤Ï¤ªÁá¤á¤Ë¤ªÌä¹ç¤»¤ª´ê¤¤Ãפ·¤Þ¤¹¡£
| À®Ìó¾õ¶· | |
|---|---|
| Ä¡¡ÎÁ | - |
| ´ÉÍýÈñ¡§-¶¦±×Èñ¡§- | |
| Éß¶â¡§-¡ÃÎé¶â¡§- | |
| Êݾڶ⡧-¡Ã²òÌó°ú¡§- | |
| ÄÚ¡¡¿ô | 218.52ÄÚ¡¡·úʪÌÌÀÑ¡§722.4m2 |
| È÷¹Í | ¡Ý |
|---|
| ½êºßÃÏ | ÅìÂçºå»Ô ¹â°æÅÄÃæ3 google¥Þ¥Ã¥×¤Ç¤ß¤ë |
|---|---|
| ¸òÄÌ | JR¤ª¤ª¤µ¤«ÅìÀþ ¡Ö¹â°æÅÄÃæ±û±Ø¡×±ØÅÌÊâ 9ʬ |
| ʪ·ï¹½Â¤ | Å´¹üALC | ʪ·ï³¬ÁØ | 2³¬·ú |
|---|---|---|---|
| ʪ·ï¼ïÊÌ | ÁÒ¸Ë | ´°À®Ç¯·î | 2021ǯ7·î |
| ÍÑÅÓÃϰè | ¹©¶ÈÃϰè | ||
| ʪ·ïÀßÈ÷ | ¥·¥ã¥¿¡¼ÅÅÆ°¥·¥ã¥Ã¥¿¡¼¥È¥¤¥ì¾ÈÌÀ¶õÄ´Ãó¼Ö¾ìÅŵ¤¾å¿åÆ»¸ø¶¦²¼¿å ¡Ý | ||
| ʪ·ïÈÖ¹æ | US1-05434 |
|---|---|
| ¥µ¥¤¥È̾ | Âçºå¤ÎÂßÁҸˡ¦Âß¹©¾ì¡¦ÇäÇã |
072-737-6699
½êºßÃÏ¡§ÂçºåÉÜ̧ÌÌ»Ô̧ÌÌ1-9-21
¥¢¥¯¥»¥¹¡§ºåµÞ̧Ì̱ؤè¤êÅì¤ØÅÌÊâ2ʬ¡ª±ØÁ°¥í¡¼¥¿¥ê¡¼¤è¤ê¥¹¥°ÌܤÎÁ°¡ª
06-6657-7090
½êºßÃÏ¡§ÂçºåÉÜÂçºå»Ô½»Ç·¹¾¶èÆî²Ã²ì²°2-8-25¥»¥¸¥å¡¼¥ë24 1³¬
¥¢¥¯¥»¥¹¡§Âçºå¥á¥È¥í½»Ç·¹¾¸ø±à±Ø4Èֽиý¿·¤Ê¤Ë¤ï¶Ú¤òÅϤäƥ¹¥°
»÷¤¿Êª·ï¤òõ¤·¤¿¤¤¡¢ºÇ¿·¤Îʪ·ï¾ðÊó¤òÃΤꤿ¤¤¡¢´õ˾¤Îʪ·ï¾ò·ï¤Ç¸«¤Ä¤±¤ÆÍߤ·¤¤¡¢¤Ê¤É¤ªµ¤·Ú¤Ë¤ªÌ䤤¹ç¤ï¤»²¼¤µ¤¤¡£