Âçºå»ÔÃæ±û¶èÇÀ¿Í¶¶3¤ÎÄÂÂß
Âçºå»ÔÃæ±û¶èÇÀ¿Í¶¶3¤ÎÂߤ·ÁÒ¸Ëʪ·ï ¾ÜºÙ
¤³¤Îʪ·ï¾ðÊó¤Ï¡Ú¡Û¤ËºîÀ®¤µ¤ì¤¿¤â¤Î¤Ç¤¹¡£













Âçºå»ÔÃæ±û¶èÇÀ¿Í¶¶
»ÔÆâÃæ¿´¥¨¥ê¥¢¡¢¥³¥ó¥Ñ¥¯¥È¤Ê1ÅïÁҸ˻ö̳½ê¤ò¤´¾Ò²ð¤·¤Þ¤¹¡ª
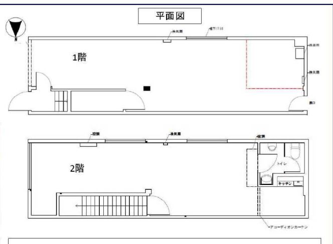
2³¬·ú¤Æ¡¡±ä¤Ù88.44Ö¡Ê26.75ÄÚ¡Ë
1³¬-13.41ÄÚ
2³¬-13.34ÄÚ
1³¬¤òÁҸˡ¢2³¬¤ò»ö̳½ê¤È¤·¤ÆºÇŬ¤Î1ÅïÂߤ·¡ª¡ª
1³¬ÁÒ¸ËÉôʬ¤Ï¥µ¥¤¥º¤Ë¤è¤ê¤Þ¤¹¤¬¼ÖξÆþ¸Ë¤â£Ï£Ë¡£
¤½¤Î¾¡¢¶È¼ï¶ÈÂ֤Ϥ´ÁêÃ̲¼¤µ¤¤¡£
| À®Ìó¾õ¶· | |
|---|---|
| Ä¡¡ÎÁ | - |
| ´ÉÍýÈñ¡§-¶¦±×Èñ¡§- | |
| Éß¶â¡§-¡ÃÎé¶â¡§- | |
| Êݾڶ⡧-¡Ã²òÌó°ú¡§- | |
| ÄÚ¡¡¿ô | 26.75ÄÚ¡¡·úʪÌÌÀÑ¡§88.44m2 |
| È÷¹Í | ¡Ý |
|---|
| ½êºßÃÏ | Âçºå»ÔÃæ±û¶è ÇÀ¿Í¶¶3 google¥Þ¥Ã¥×¤Ç¤ß¤ë |
|---|---|
| ¸òÄÌ | Âçºå¥á¥È¥íºæ¶ÚÀþ ¡Öºæ¶ÚËÜÄ®±Ø¡×±ØÅÌÊâ 6ʬ |
| ʪ·ï¹½Â¤ | Å´¹ü | ʪ·ï³¬ÁØ | 2³¬·ú |
|---|---|---|---|
| ʪ·ï¼ïÊÌ | ÁÒ¸Ë | ´°À®Ç¯·î | 1997ǯ1·î |
| ÍÑÅÓÃϰè | ¾¦¶ÈÃϰè | ||
| ʪ·ïÀßÈ÷ | ¥·¥ã¥¿¡¼¥È¥¤¥ì¶õÄ´Åŵ¤¾å¿åÆ»¸ø¶¦²¼¿å ¡Ý | ||
| ʪ·ïÈÖ¹æ | US1-05370 |
|---|---|
| ¥µ¥¤¥È̾ | Âçºå¤ÎÂßÁҸˡ¦Âß¹©¾ì¡¦ÇäÇã |
072-737-6699
½êºßÃÏ¡§ÂçºåÉÜ̧ÌÌ»Ô̧ÌÌ1-9-21
¥¢¥¯¥»¥¹¡§ºåµÞ̧Ì̱ؤè¤êÅì¤ØÅÌÊâ2ʬ¡ª±ØÁ°¥í¡¼¥¿¥ê¡¼¤è¤ê¥¹¥°ÌܤÎÁ°¡ª
06-6657-7090
½êºßÃÏ¡§ÂçºåÉÜÂçºå»Ô½»Ç·¹¾¶èÆî²Ã²ì²°2-8-25¥»¥¸¥å¡¼¥ë24 1³¬
¥¢¥¯¥»¥¹¡§Âçºå¥á¥È¥í½»Ç·¹¾¸ø±à±Ø4Èֽиý¿·¤Ê¤Ë¤ï¶Ú¤òÅϤäƥ¹¥°
»÷¤¿Êª·ï¤òõ¤·¤¿¤¤¡¢ºÇ¿·¤Îʪ·ï¾ðÊó¤òÃΤꤿ¤¤¡¢´õ˾¤Îʪ·ï¾ò·ï¤Ç¸«¤Ä¤±¤ÆÍߤ·¤¤¡¢¤Ê¤É¤ªµ¤·Ú¤Ë¤ªÌ䤤¹ç¤ï¤»²¼¤µ¤¤¡£