Âçºå»Ôº¡²Ö¶èÅç²°4¤ÎÄÂÂß
Âçºå»Ôº¡²Ö¶èÅç²°4¤ÎÂߤ·ÁÒ¸Ëʪ·ï ¾ÜºÙ
¤³¤Îʪ·ï¾ðÊó¤Ï¡Ú¡Û¤ËºîÀ®¤µ¤ì¤¿¤â¤Î¤Ç¤¹¡£













Âçºå»Ôº¡²Ö¶èÅç²°4ÃúÌÜ
»ÔÆâ¥Ù¥¤¥¨¥ê¥¢¤Î¹©¾ì»ÈÍѲÄǽ¤Ê1Åï¥Ó¥ë¤Ë¶õ¤¤¬½Ð¤Þ¤·¤¿¡£
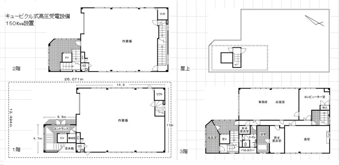
ÉßÃÏÌÌÀÑ¡¡Ìó351.99Ö¡ÊÌó106ÄÚ¡Ë
·úʪ±ä¤ÙÌÌÀÑ¡¡Ìó568.59Ö¡ÊÌó172.3ÄÚ¡Ë
1³¬¡¡ºî¶È¾ì¡¡Ìó182.64Ö¡ÊÌó55.3ÄÚ¡Ë
2³¬¡¡ºî¶È¾ì¡¡Ìó193.13Ö¡ÊÌó58.5ÄÚ¡Ë
3³¬¡¡¥ª¥Õ¥£¥¹¡¡Ìó192.82Ö¡ÊÌó58.4ÄÚ¡Ë
1¡Á3³¬¡¡EVͤê
1¡Á2³¬¡¡²ÙʪÍÑ¥ê¥Õ¥Èͤê
¥¥å¡¼¥Ó¥¯¥ë¼°¹â°µ¼õÅÅÀßÈ÷¡Ê150kva¡ËÀßÃÖͤꡣ
3³¬¤Ï¡¢»ö̳½ê¡¢¥³¥ó¥Ô¥å¡¼¥¿¡¼¼¼¡¢¿©Æ²¡¢¼ÒĹ¼¼¡¢Ã˽÷¹¹°á¼¼Åù¤Ë
¶èÀÚ¤é¤ì¤Æ¤¤¤Þ¤¹¡£
ÉßÃÏÆâ¤Ë¤ÏÃó¼Ö¥¹¥Ú¡¼¥¹¤â¸æºÂ¤¤¤Þ¤¹¡ª¡ª
¹©¾ì»ÈÍÑ¡¢ÁҸ˻ö̳½ê¡¢±Ä¶È½ê¤Ê¤É¡¢¡¢¡¢
¶È¼ï¤Ï¤´ÁêÃ̲¼¤µ¤¤¡£
| À®Ìó¾õ¶· | |
|---|---|
| Ä¡¡ÎÁ | - |
| ´ÉÍýÈñ¡§-¶¦±×Èñ¡§- | |
| Éß¶â¡§-¡ÃÎé¶â¡§- | |
| Êݾڶ⡧-¡Ã²òÌó°ú¡§- | |
| ÄÚ¡¡¿ô | 172.3ÄÚ¡¡·úʪÌÌÀÑ¡§568.59m2 |
| È÷¹Í | ¡Ý |
|---|
| ½êºßÃÏ | Âçºå»Ôº¡²Ö¶è Åç²°4 google¥Þ¥Ã¥×¤Ç¤ß¤ë |
|---|---|
| ¸òÄÌ | JRºùÅçÀþ¡ÊJR¤æ¤áºéÀþ¡Ë ¡Ö°Â¼£Àî¸ý±Ø¡×±ØÅÌÊâ 5ʬ |
| ʪ·ï¹½Â¤ | ¡Ý | ʪ·ï³¬ÁØ | 3³¬·ú |
|---|---|---|---|
| ʪ·ï¼ïÊÌ | ¹©¾ì | ´°À®Ç¯·î | 1992ǯ7·î |
| ÍÑÅÓÃϰè | ¡Ý | ||
| ʪ·ïÀßÈ÷ | ¥·¥ã¥¿¡¼¥È¥¤¥ì¾ÈÌÀ¶õÄ´Ãó¼Ö¾ìÅŵ¤¥¨¥ì¥Ù¡¼¥¿¡¼ÅÔ»Ô¥¬¥¹¾å¿åÆ»¸ø¶¦²¼¿å ¡Ý | ||
| ʪ·ïÈÖ¹æ | US1-05361 |
|---|---|
| ¥µ¥¤¥È̾ | Âçºå¤ÎÂßÁҸˡ¦Âß¹©¾ì¡¦ÇäÇã |
072-737-6699
½êºßÃÏ¡§ÂçºåÉÜ̧ÌÌ»Ô̧ÌÌ1-9-21
¥¢¥¯¥»¥¹¡§ºåµÞ̧Ì̱ؤè¤êÅì¤ØÅÌÊâ2ʬ¡ª±ØÁ°¥í¡¼¥¿¥ê¡¼¤è¤ê¥¹¥°ÌܤÎÁ°¡ª
06-6657-7090
½êºßÃÏ¡§ÂçºåÉÜÂçºå»Ô½»Ç·¹¾¶èÆî²Ã²ì²°2-8-25¥»¥¸¥å¡¼¥ë24 1³¬
¥¢¥¯¥»¥¹¡§Âçºå¥á¥È¥í½»Ç·¹¾¸ø±à±Ø4Èֽиý¿·¤Ê¤Ë¤ï¶Ú¤òÅϤäƥ¹¥°
»÷¤¿Êª·ï¤òõ¤·¤¿¤¤¡¢ºÇ¿·¤Îʪ·ï¾ðÊó¤òÃΤꤿ¤¤¡¢´õ˾¤Îʪ·ï¾ò·ï¤Ç¸«¤Ä¤±¤ÆÍߤ·¤¤¡¢¤Ê¤É¤ªµ¤·Ú¤Ë¤ªÌ䤤¹ç¤ï¤»²¼¤µ¤¤¡£