Âçºå»ÔÀ¸Ìî¶èçÀ¾2¤ÎÄÂÂß
Âçºå»ÔÀ¸Ìî¶èçÀ¾2¤ÎÂߤ·ÁÒ¸Ëʪ·ï ¾ÜºÙ
¤³¤Îʪ·ï¾ðÊó¤Ï¡Ú¡Û¤ËºîÀ®¤µ¤ì¤¿¤â¤Î¤Ç¤¹¡£













Âç¾®¤Î¹©¾ì¡¦ÁҸˤ¬Â¿¿ô½¸¤Þ¤ëÂçºå»ÔÆâÅìÉô¤ÎÀ¸Ìî¶è¥¨¥ê¥¢¡£
º£²ó¡¢Ìó100֤ν»µï¥¹¥Ú¡¼¥¹¤¬ÉÕ¤¤¤¿½»ÂðÉÕ¤¹©¾ìÁҸˤ¬Ê罸¤Ë½Ð¤Þ¤·¤¿¡ª¡ª
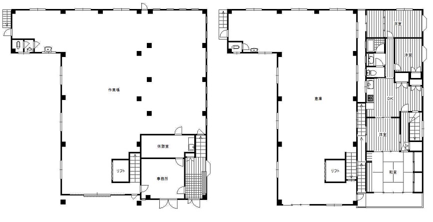
2³¬·ú¤Æ
1³¬-Ìó246Ö¡Ê74.5ÄÚ¡Ë
¹©¾ì¡¦ºî¶È¾ì¤Ë»ö̳½ê¡¦±þÀÜ¥¹¥Ú¡¼¥¹¤òÀߤ±¤Æ¤¤¤Þ¤¹¡£
2³¬-Ìó239Ö¡ÊÌó72.4ÄÚ¡Ë
ÁҸˡ¦ºî¶È¾ì¥¹¥Ú¡¼¥¹Ìó139Ö¡£
µï½»¥¹¥Ú¡¼¥¹¡Ê4£Ä£Ë¡ËÌó100Ö
¹©¾ì¡¦ÁÒ¸ËÉôʬ¤Ëͤë¥ê¥Õ¥È¤Ï»ÄÃÖʪ°·¤¤¤Ë¤Ê¤ê¤Þ¤¹¤¬¤´»ÈÍѲÄǽ¤Ç¤¹¡£
¿ô¾¯¤Ê¤¤¡¢½»ÂðÉÕ¤1ÅïÂߤ·¹©¾ì¡¦ÁҸˤǤ¹¡ª¡ª
| À®Ìó¾õ¶· | |
|---|---|
| Ä¡¡ÎÁ | - |
| ´ÉÍýÈñ¡§-¶¦±×Èñ¡§- | |
| Éß¶â¡§-¡ÃÎé¶â¡§- | |
| Êݾڶ⡧-¡Ã²òÌó°ú¡§- | |
| ÄÚ¡¡¿ô | 146.9ÄÚ¡¡·úʪÌÌÀÑ¡§485m2 |
| È÷¹Í | ¡Ý |
|---|
| ½êºßÃÏ | Âçºå»ÔÀ¸Ìî¶è çÀ¾2 google¥Þ¥Ã¥×¤Ç¤ß¤ë |
|---|---|
| ¸òÄÌ | Âçºå¥á¥È¥íÀéÆüÁ°Àþ ¡ÖËÌç±Ø¡×±Ø ¡Ý ¡Ý |
| ʪ·ï¹½Â¤ | Å´¹ü | ʪ·ï³¬ÁØ | 2³¬·ú |
|---|---|---|---|
| ʪ·ï¼ïÊÌ | ¹©¾ì | ´°À®Ç¯·î | ¡Ý |
| ÍÑÅÓÃϰè | ½à¹©¶ÈÃϰè | ||
| ʪ·ïÀßÈ÷ | ¥·¥ã¥¿¡¼¥È¥¤¥ìµëÅò¾ÈÌÀÅŵ¤ÅÔ»Ô¥¬¥¹¾å¿åÆ»¸ø¶¦²¼¿åưÎÏÅŵ¤ ¡Ý | ||
| ʪ·ïÈÖ¹æ | US1-05346 |
|---|---|
| ¥µ¥¤¥È̾ | Âçºå¤ÎÂßÁҸˡ¦Âß¹©¾ì¡¦ÇäÇã |
072-737-6699
½êºßÃÏ¡§ÂçºåÉÜ̧ÌÌ»Ô̧ÌÌ1-9-21
¥¢¥¯¥»¥¹¡§ºåµÞ̧Ì̱ؤè¤êÅì¤ØÅÌÊâ2ʬ¡ª±ØÁ°¥í¡¼¥¿¥ê¡¼¤è¤ê¥¹¥°ÌܤÎÁ°¡ª
06-6657-7090
½êºßÃÏ¡§ÂçºåÉÜÂçºå»Ô½»Ç·¹¾¶èÆî²Ã²ì²°2-8-25¥»¥¸¥å¡¼¥ë24 1³¬
¥¢¥¯¥»¥¹¡§Âçºå¥á¥È¥í½»Ç·¹¾¸ø±à±Ø4Èֽиý¿·¤Ê¤Ë¤ï¶Ú¤òÅϤäƥ¹¥°
»÷¤¿Êª·ï¤òõ¤·¤¿¤¤¡¢ºÇ¿·¤Îʪ·ï¾ðÊó¤òÃΤꤿ¤¤¡¢´õ˾¤Îʪ·ï¾ò·ï¤Ç¸«¤Ä¤±¤ÆÍߤ·¤¤¡¢¤Ê¤É¤ªµ¤·Ú¤Ë¤ªÌ䤤¹ç¤ï¤»²¼¤µ¤¤¡£