Âçºå»ÔÅìÍäÀî¶èøϩ3¤ÎÂߤ·ÁÒ¸Ëʪ·ï ¾ÜºÙ

øϩ¥ê¥Õ¥ÈÍ­ÁÒ¸Ë

Âçºå»ÔÅìÍäÀî¶èøϩ3¤ÎÄÂÂß

¤³¤Îʪ·ï¾ðÊó¤Ï¡Ú¡Û¤ËºîÀ®¤µ¤ì¤¿¤â¤Î¤Ç¤¹¡£

ʪ·ï¾ðÊó

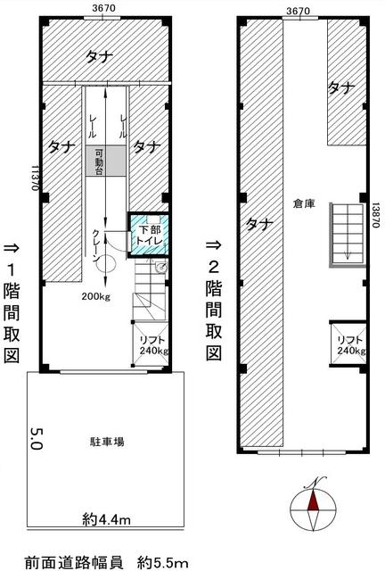
1³¬ Ìó41.54­Ö

2³¬ Ìó50.80­Ö

¥ê¥Õ¥È¡¢¥¯¥ì¡¼¥óÉÕ¤­¤ÎÁҸˤǤ¹¡£

ÆâÁõÈó¾ï¤ËåºÎï¤Ç¤¹¡£

À§Èó¡£

 

À®Ìó¾õ¶· Í׳Îǧ
Ä¡¡ÎÁ -
´ÉÍýÈñ¡§-¶¦±×Èñ¡§-
Éß¶â¡§-¡ÃÎé¶â¡§-
Êݾڶ⡧-¡Ã²òÌó°ú¡§-
ÄÚ¡¡¿ô 27.93ÄÚ¡¡·úʪÌÌÀÑ¡§92.34m2
È÷¹Í ¡Ý

ʪ·ï´ðËܾðÊó

½êºßÃÏÂçºå»ÔÅìÍäÀî¶è øϩ3
google¥Þ¥Ã¥×¤Ç¤ß¤ë
¸òÄ̺åµÞµþÅÔÀþ
¡Öøϩ±Ø¡×±ØÅÌÊâ 6ʬ
ʪ·ï¹½Â¤Å´¹üALC ʪ·ï³¬ÁØ2³¬·ú
ʪ·ï¼ïÊÌÁÒ¸Ë ´°À®Ç¯·î2002ǯ
ÍÑÅÓÃÏ°è ¡Ý
ʪ·ïÀßÈ÷¥·¥ã¥¿¡¼¥È¥¤¥ì¾ÈÌÀÃó¼Ö¾ì¥ê¥Õ¥ÈÅŵ¤¾å¿åÆ»¸ø¶¦²¼¿å ¡Ý
ʪ·ïÈÖ¹æUS1-04027
¥µ¥¤¥È̾Âçºå¤ÎÂßÁҸˡ¦Âß¹©¾ì¡¦ÇäÇã

ôÅöŹÊÞ

ŹÊÞ³°´Ñ

BRUNOÉÔÆ°»º³ô¼°²ñ¼Ò ¥¨¥¤¥Ö¥ë¥Í¥Ã¥È¥ï¡¼¥¯Ì§ÌÌŹ

072-737-6699

½êºßÃÏ¡§ÂçºåÉÜ̧ÌÌ»Ô̧ÌÌ1-9-21
¥¢¥¯¥»¥¹¡§ºåµÞ̧Ì̱ؤè¤êÅì¤ØÅÌÊâ2ʬ¡ª±ØÁ°¥í¡¼¥¿¥ê¡¼¤è¤ê¥¹¥°ÌܤÎÁ°¡ª

ÃϿޠÍèŹͽÌ󤹤ë

ŹÊÞ³°´Ñ

BRUNOÉÔÆ°»º³ô¼°²ñ¼Ò ¥¨¥¤¥Ö¥ë¥Í¥Ã¥È¥ï¡¼¥¯½»Ç·¹¾¸ø±àŹ

06-6657-7090

½êºßÃÏ¡§ÂçºåÉÜÂçºå»Ô½»Ç·¹¾¶èÆî²Ã²ì²°2-8-25¥»¥¸¥å¡¼¥ë24 1³¬
¥¢¥¯¥»¥¹¡§Âçºå¥á¥È¥í½»Ç·¹¾¸ø±à±Ø4Èֽиý¿·¤Ê¤Ë¤ï¶Ú¤òÅϤäƥ¹¥°

ÃϿޠÍèŹͽÌ󤹤ë

ŹÊÞ³°´Ñ

BRUNOÉÔÆ°»º³ô¼°²ñ¼Ò ¥¨¥¤¥Ö¥ë¥Í¥Ã¥È¥ï¡¼¥¯Èî¸å¶¶¤¦¤Ä¤Ü¸ø±àÁ°Å¹

06-6459-4555

½êºßÃÏ¡§Âçºå»ÔÀ¾¶èµþÄ®ËÙ1-10-21
¥¢¥¯¥»¥¹¡§Ãϲ¼Å´»Í¥Ä¶¶Àþ Èî¸å¶¶±Ø7Èֽиý¤è¤êÆîÀ¾¤ØÅÌÊâ3ʬ

ÃϿޠÍèŹͽÌ󤹤ë

»÷¤¿Êª·ï¤òõ¤·¤¿¤¤¡¢ºÇ¿·¤Îʪ·ï¾ðÊó¤òÃΤꤿ¤¤¡¢´õ˾¤Îʪ·ï¾ò·ï¤Ç¸«¤Ä¤±¤ÆÍߤ·¤¤¡¢¤Ê¤É¤ªµ¤·Ú¤Ë¤ªÌ䤤¹ç¤ï¤»²¼¤µ¤¤¡£

´õ˾¾ò·ï¥ê¥¯¥¨¥¹¥È